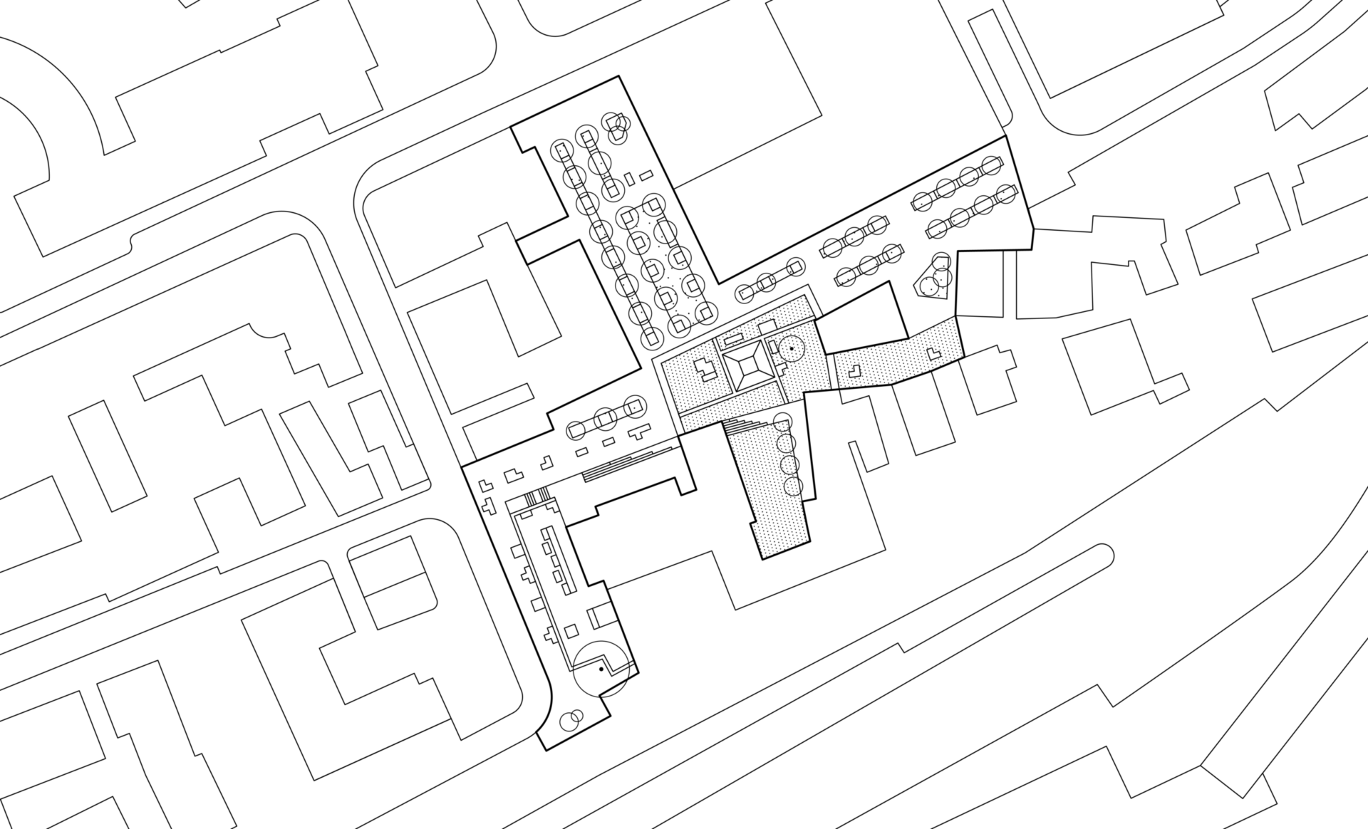
Place de l’Hôtel de Ville

Située entre la gare CFF et l’avenue du Général Guisan, la place de l’Hôtel de Ville s’affirme comme l’un des espaces publics majeurs de Sierre. Débarrassée du trafic, elle se transforme en un lieu de séjour accueillant, respectueux de son identité architecturale et ouvert à tous les usages du quotidien comme aux grands événements de la ville.

Face au réchauffement climatique, le projet mise sur les ressources naturelles Eau–Sol–Végétal pour réduire les îlots de chaleur. La nouvelle canopée d’arbres majeurs offre ombrage et confort thermique, tandis que des surfaces perméables, des noues paysagères et un enrobé drainant dirigent l’eau vers les racines. Ces dispositifs transforment la place en un véritable système de rafraîchissement naturel : infiltration, évapotranspiration, jardins de pluie et continuités végétales redonnent de la résilience au cœur de ville.

Pour accompagner ces zones d’ombre, un mobilier en bois modulaire, polyvalent et réemployable crée des espaces de détente flexibles : plateformes circulaires autour des arbres, transats près de la fontaine, parasol urbain au pied des gradins. Pensé pour les usages du quotidien, ce mobilier peut aussi être déplacé ou reconfiguré selon les besoins des marchés, fêtes et manifestations.

Réalisation

2025

Maître d'ouvrage

Ville de Sierre

Procedure

Mandat d'études paralleles 1er prix

Partenaires

RWB Valais SA

Prestations executées

SIA 143 ensuite 31 à 51

Localisation

Sierre (VS)

Surface

8'800m2

Les atouts du projet

Un cœur urbain végétalisé et rafraîchi : nouvelle canopée, surfaces perméables et jardins de pluie pour réduire les îlots de chaleur et renforcer le confort climatique.

Un espace public vivant et flexible : mobilier en bois modulaire, assises ombragées et aménagements réarrangeables pour accueillir autant le quotidien que les grands événements.

Une identité paysagère forte : continuités végétales, revêtements harmonisés et jardins-belvédères en toiture offrant un panorama sur les Alpes et prolongeant le caractère du site.